Ali Erkan Evi
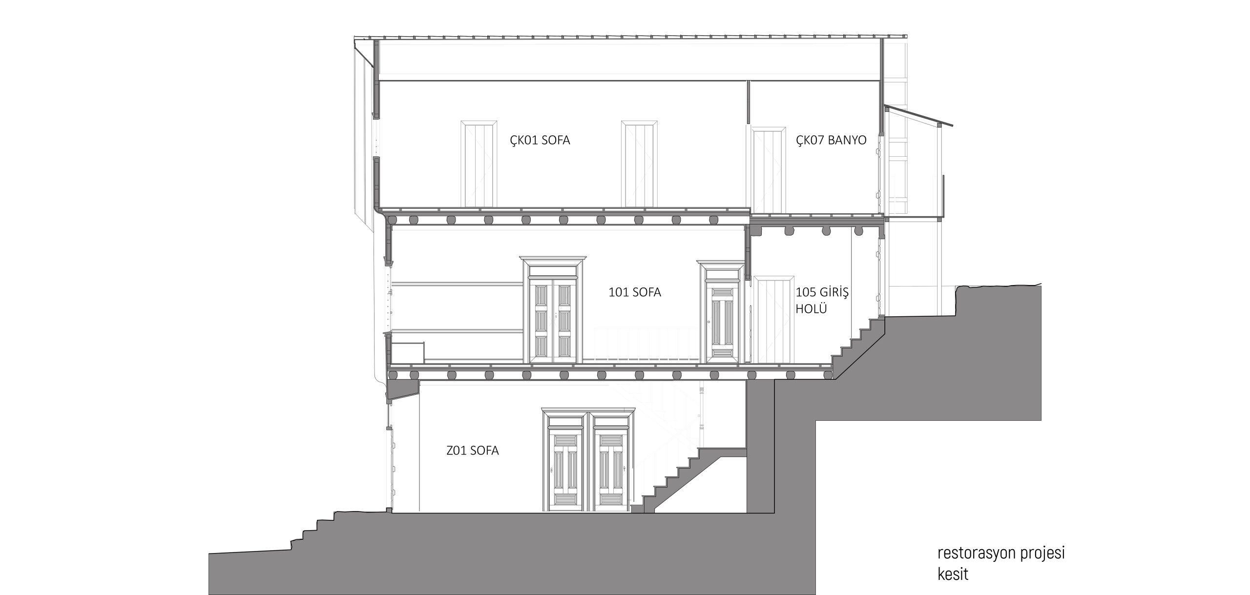
Gümüşhane’nin tarihi Süleymaniye Mahallesi’nde yer alan Ali Erkan Evi, özgün işlevini sürdürmesi ve niteliklerinin korunması amacıyla 2013 yılında KOOP Mimarlık tarafından rölöve, restitüsyon, restorasyon projeleri hazırlanan proje, 2017 yılında restore edildi. Proje kapsamında, yapının çağdaş ihtiyaçlara uyum sağlaması için yapılan müdahaleler, özgün plan şemasına sadık kalarak gerçekleştirildi. Aile yapısının genişlemesi ve modern ıslak mekân ihtiyaçlarına yönelik küçük çaplı müdahaleler dışında yapı, tamamen özgün kimliğiyle korundu.
Restorasyon sürecinde hasar görmüş ahşap elemanlar, özgün detay ve malzemelerle yenilendi; kapatılan ocaklar, merdivenler ve diğer özgün boşluklar açıldı. Yine bu süreçte, bölgenin tarihi dokusuna uygun olarak çatı ve döşeme kaplamaları gibi unsurlar da orijinal yapıyla uyumlu malzemelerle yenilendi. Özellikle zemin kat ve birinci katta yapılan müdahalelerle yapı hem tarihi dokusunu korumuş hem de modern yaşam standartlarına uygun hale getirildi.
Yapının çevresindeki niteliksiz ekler ve işlevini yitirmiş yapılar kaldırıldı, drenaj sistemi ile nem sorunları giderildi. Ayrıca, çatı katına işlev kazandırmak ve yapının kullanım alanlarını genişletmek amacıyla çağdaş eklemeler yapıldı. Yapının genel mimari karakteri korunarak, aile ihtiyaçlarına yönelik modern eklemeler gerçekleştirildi.
Künye
Konum: Eski Gümüşhane, Gümüşhane, Türkiye
İşveren: Ali Erkan
Ekip: Y. Burak Dolu, Arslan Kurnaz
Proje Tarihi: 2013
Uygulama Tarihi: 2017
Kapalı Alan (m2): 290
Arsa Alanı (m2): 620
Tür: Mimari, Restorasyon
Program: Konut
Kapsam: Rölöve, Restitüsyon, Restorasyon, Şantiye Kontrollüğü
Galeri
Proje Konumu
KOOP Mimarlık
Şahkulu Mahallesi,
Kumbaracı Yokuşu, No:57, D:5,
Beyoğlu / İstanbul / Türkiye
Al Tayseer Street, No 67, Flat 403,
Al Ain Central District, Abu Dhabi, UAE

















